Клапан предохранительный самопритирающийся 0.7 в Монголии

Цена с НДС:
23 000 рублей
Цена с НДС на клапан предохранительный самопритирающийся 0.7 с доставкой в
от 23 000 рублей
Условия в
В наличии на складе
Доставка ТК по России и Казахстану
Безналичный расчет
Есть в наличии
Технические
характеристики
Описание
товара
Сертификаты
и гарантии

Технические характеристики клапана предохранительного самопритирающегося 0.7

Рабочая среда Пар, Насыщенный водяной пар
Тип Клапан
Давление 0.05 МПа
Диаметр корпуса 250 мм
Температура рабочей среды до 150 °С
Пропускная способность клапана 520 кг/ч
Условия эксплуатации Помещение
Масса 11.73 кг
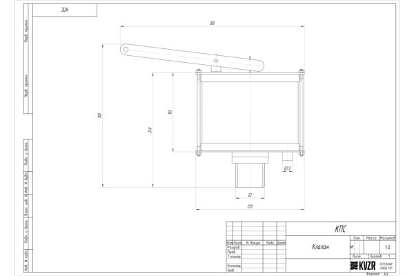
Чертеж клапана КПС
Клапан КПС чертеж

Клапан предохранительный самопритирающийся

Клапан предохранительный Ду 50 рычажный КПС-0,7 предназначен для защиты оборудования от недопустимого давления посредством сброса избытка рабочей среды - воды и пара. 

Клапан рычажный КПС-0,7 устанавливается с паровыми котлами типа КП-300, 500, 700,1000, 1500, 1600, 2000, 2500 с рабочим давлением не более 0,05 МПа (0,7 бар).

Клапан предохранительный самопритирающийся

Для того чтобы купить клапан предохранительный самопритирающийся вы можете сделать заявку в отдел сбыта по телефону 8-800-700-06-43, либо оформить заявку онлайн. Транспортирование скиповых подъемников  может осуществляться автотранспортом, ж/д полувагонами и речным транспортом.

Сертификаты и гарантии клапана предохранительного самопритирающегося 0.7

Сертификат на клапаны предохранительные
Сертификат на клапаны предохранительные

Отзывы о продукции