Купить золоуловитель 0,8 в Монголии

  • Компактный золоуловитель для твердотопливных котлов
  • Может устанавливаться как сразу за котлом, так и на улице
  • Универсальная конструкция позволяет организовать выход справа или слева, в зависимости от компоновки газоходов
Цена с НДС:
51 000 рублей
Цена с НДС на золоуловитель 0,8 с доставкой в
от 51 000 рублей
Условия в
В наличии на складе
Доставка ТК по России и Казахстану
Безналичный расчет
Есть в наличии
ЗУ 0.8 золоуловитель
Золоуловитель ЗУ 0.8
Котел с золоуловителем ЗУ-0.8
Котел КВр с золоуловителем ЗУ 0.8
Устройство золоуловителя ЭП 0.8
Устройство золоуловителя ЭП 0.8
Производство золоуловителей ЗУ 0.8
Производство золоуловителей ЗУ 0.8
Изготовление золоуловителя ЗУ 0.8
Изготовление золоуловителей ЗУ 0.8
ЗУ 0.8 золоуловитель
Котел с золоуловителем ЗУ-0.8
Устройство золоуловителя ЭП 0.8
Производство золоуловителей ЗУ 0.8
Изготовление золоуловителя ЗУ 0.8
Видеообзор
Технические
характеристики
Описание
товара
Дополнительно
потребуется
Сертификаты
и гарантии

Технические характеристики

Тип циклона Золоуловитель
Вид ЗУ
Марка ЗУ 0.8
Камера очищенных газов Сборник
КПД котла на УГЛЕ 80 %
Производительность 3620-4920 м³/ч
Аэродинамическое сопротивление 800 (80) Па (мм. вод. ст.)
Допустимая температура газов на входе до 400 °C
Максимальный расход газа 1.11 м³/с
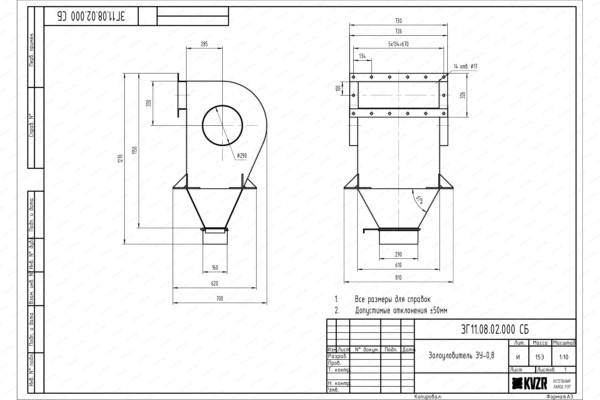
Сечение входного отверстия 200*600 мм
Диаметр выходного отверстия 290 мм
Объем бункера накопителя 0.05 м³
Габаритные размеры: длина, ширина, высота 660х726х1150 мм
Масса 153 кг
Применяемость Котлы мощностью 0.8 МВт
Чертеж золоуловителя ЗУ 0.8
Золоуловитель ЗУ 0.8 чертеж

Золоуловитель ЗУ 0.8 в Монголии

Золоуловители ЗУ 0,8 представляют собой горизонтальный циклон, предназначенный для сухой инерционной очистки газов от летучей золы (более 50 мкм) с максимальной температурой 260°С. Золоуловитель 0,8 могжет устанавливаться как сразу за котлом, так и за пределами котельной на группу котлов. Эксплуатируются в помещениях и вне помещений котельных под навесом при температуре окружающего воздуха от -60°С до +40°С.

Золоуловители ЗУ 0,8 относятся к типу горизонтального циклона по расположению оси очищаемого потока газа. Дымовой газ поступает во входное отверстие и движется между криволинейными стенками корпуса. Под действием гравитационных сил из потока очищаемого газа выделяются твердые частицы, которые накапливаются в бункере. Зола удаляется через снизу шибер. Очищенный газ отводится из золоуловителя по патрубку через круглое выходное отверстие на боковой стенке.

В комплект поставки золоуловителей входит: бункер-накопитель и корпус золоуловителя.

Золоуловитель ЗУ 0,8 применяется для улавливания золовых отложений после водогрейных котлов КВр и КВм мощностью  0,8 Гкал.

Технические характеристики

Параметры Размерность Золоуловитель ЗУ 0,8
Номинальная производительность м³/ч 2400
Диапазон рабочего регулирования % 90-100
Коэффициент очистки % 87
Номинальное аэродинамическое сопротивление Па Не более 800
Максимальная температура газов °С 200
Сечение входного отверстия мм 200×600
Объем бункера накопителя м³ 0,05
Масса золоуловителя кг 153
Длина мм 660
Ширина мм 730
Высота мм 1150
Полный срок службы лет Не менее 5
Применение: котел/группа котлов суммарной мощностью до МВт 0,93

Купить золоуловитель 0,8

Для того что бы купить золоуловитель 0,8 в Монголии вы можете сделать заявку в отдел сбыта по телефону 8-800-700-06-43, либо оформить заявку он-лайн. Золоуловители ЗУ 0,8 транспортируются автотранспортом и ж/д контейнерами. Для расчета стоимости доставки пришлите заявку и инженеры консультанты проведут расчет стоимости доставки до вашего города или населенного пункта.

КВр котел 0.8 МВт
Котел КВр 0.8
564000 руб. с НДС
  • Самая простая модель с ручной колосниковой топкой
  • Удобно размещается в маленьких помещениях котельных
  • Работает с дымососом и вентилятором
  • Тяга и дутье регулируются шиберами, входящими в комплект поставки
  • Повышенная надежность работы котла обеспечивается изготовлением трубной системы из трубы сталь 10
  • Гарантия 24 месяца, срок службы 10 лет
Котел с ОУР 0.8
Котел 0.8 с ОУР
552000 руб. с НДС
Котел с РПК топкой
Котел КВ 0.8 РПК
890000 руб. с НДС
  • Модель с ручным забросом топлива в топку и полуавтоматическим сбросом золы шлака при помощи поворотных опрокидывающихся колосников
  • Дутье и тяга регулируются шиберами
  • Надежная работа котла обеспечивается изготовлением трубной системы из трубы сталь 10 повышенной прочности
Котел КВм 0.8 ТШПМ
Котел КВм 0.8 с ТШПМ
1243000 руб. с НДС
  • Модель с механической топкой с шурующей планкой ТШПМ
  • Работа на каменном и буром угле повышенной влажности
  • Полностью автоматизированная работа – подача и равномерное распределение топлива, механическое золоудаление, контроль температуры и давления, контроль перегрузки планки
  • Надежная работа котла обеспечивается изготовлением трубной системы из трубы сталь 10 повышенной прочности
  • Удобные люки для очистки поверхностей нагрева
Котел дровяной 0.8 МВт с большой топкой
Дровяной котел 0.8 МВт с большой топкой
864400 руб. с НДС
  • Модель для работы на крупных кусковых отходах деревопереработки – дровах, досках, поддонах и прочее;
  • Длина топочной камеры - 2000 мм;
  • Эффективное сжигание топлива и высокое КПД;
  • Быстрый нагрев теплоносителя

Сертификат для золоуловителей
Сертификат на золоуловители

Отзывы о продукции

Другая похожая продукция

2 249 000 ₽
1 340 000 ₽
Цена по
запросу
97 000 ₽